湘遇好房子·筑就湖湘人居新标杆|居住新模式重塑住房新观念
时间: 2026-03-11 15:01
编者按:随着经济社会发展,人民群众的住房需求正从“有没有”向“好不好”深刻转变。我省深入贯彻落实住建部关于“好房子”建设和提升住宅品质的系列部署,号召动员全省勘察设计单位和技术人员积极响应,在住建部、中国勘察设计协会等“好房子”设计竞赛活动中屡创佳绩,充分展现了“湖湘设计”综合实力。为让“好房子”设计理念走进三湘居民生活,湖南省住房和城乡建设厅系统梳理近年来优秀住宅项目设计案例,集中展示创新理念与实践成果,凝聚行业共识、激发创作活力,不断提升人民群众的居住获得感、幸福感、安全感。
本次带来的案例是住建部全国“好房子”设计大赛优秀奖作品:取一木,还一林·立一屋,守一生。
项目基本信息:
作品名称:取一木,还一林·立一屋,守一生
作品奖项:全国“好房子”设计大赛优秀奖(专业组)
设计单位:中机国际工程设计研究院有限责任公司
主创设计:杨建锋
设计团队:陆云伟、邢书舟、罗媛
一、项目背景
2026年1月31日,由住房城乡建设部主办的全国“好房子”设计大赛成果发布会在北京举行,我省中机国际工程设计研究院有限责任公司建筑设计研究院副总建筑师杨建锋作品“取一木,还一林·立一屋,守一生”荣获大赛优秀奖。
二、项目展示
当下,住宅发展正从增量扩张转向存量提质阶段。面对日益多元的居住需求、不断择地新建造成的资源浪费,以及中国人对“宅地”那份根植于血脉的情感执念。我们认为“好房子”的底层逻辑,不是物理空间的完美复刻,而是让人愿意留下、能够扎根生活的土壤。


(效果图)
三、项目理念及亮点
1.结构的一生
有机拓扑的支撑体。设计以钢结构框架作为一个支撑体单元,模块化的房间为填充体。支撑体可以适应个人需求的动态变化。单元之间预留弹性接口,为未来加改建预留“生长缝”。

模块化集成的填充体。填充体则如“可拆卸的家具”般自由装配。每个填充单元均在工厂内完成,施工现场仅需要像搭积木般组装起来即可。

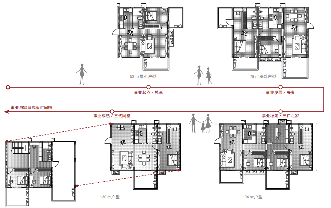
2.户型的一生
售卖空间产权。设计提出售卖“空间产权”的概念,让城里人也有“宅基地”。这种“一宅两制”的空间售卖逻辑,让产权单元随生命节律自主呼吸、从容伸缩。


户型精细模块化。设计以空间为框架,78平方米为核心户型,将主卧、次卧以及起居功能细分为不同功能模块。根据个人喜好进行个性化定制。

搭载网购平台UI设计。借助互联网UI平台界面,用户可以在手机上挑选空间位置,户型面积、房间布局、装饰材料和风格,实现户型个性定制化。

户型伴随人成长。设计以78平方米作为基础户型,其最大拓展面积可达130平方米。该户型能够伴随居住者人生阶段的递进,于同一户型内实现居住需求的过渡。


3.单元的一生
住宅单元弹性设计。在单元层面,邻里空间不再固化为走廊或门厅,而是随家庭结构变化、代际关系演进、社区人口更迭而动态重组。


住宅单元立体街巷式设计。通过街巷与院落的组合,使空间张弛有度,空间界面具有连续性,从而塑造互相交融的街巷空间。

4.建筑的一生
多层级共享。住宅楼与核心筒分离,围绕公共服务配套分布。单元组团形成竖向三级共享,实现距离可控的社交圈。

绿谷退台。组团整体呈现“绿谷退台”的建筑形态,既为城市留出绿色呼吸空间,也为未来人口变化预留了有机生长的接口。

四、社会效应及应用价值

设计方案紧扣“好房子”建设核心要求,探讨未来可持续发展的居住新模式:以装配式结构体系为骨架,缩短建造周期;以互联网UI平台为引擎,提升用户体验;以精细化单元模块设计为抓手,满足用户个性化要求。住宅以百年为衡量尺度,生生不息,实现自我生长,筑造百年基业,为湖南乃至全国住宅品质升级提供创新性思考,重塑住房新观念。